7032 ROUNDLEAF DriveJacksonville, FL 32258
Due to the health concerns created by Coronavirus we are offering personal 1-1 online video walkthough tours where possible.




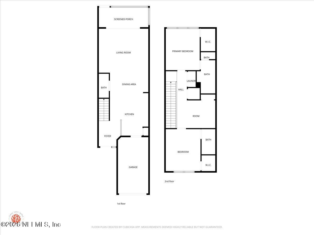
Welcome to this gated community with this beautifully maintained 2-bedroom, 2.5-bathroom residence offering an ideal blend of comfort and convenience, with fantastic community amenities including a pool and workout facilities. Bright and open living space featuring a desirable no-carpet environment with elegant tile and laminate wood flooring throughout. The kitchen is a chef's delight, boasting ample storage with 42'' cabinets. Upstairs, you'll find two spacious bedrooms, each featuring its own private ensuite bathroom, providing ultimate privacy and convenience. An additional upstairs loft area offers flexible space for a home office, media room, or play area. Enjoy your morning coffee or evening relaxation on the large, screened patio that offers peaceful, picturesque views overlooking the lake. The property also includes a 1-car attached garage. Location is key! Near major interstate and highways making your commute a breeze! Close to shopping, dining, and local hospital. Call today
| yesterday | Listing first seen on site | |
| yesterday | Listing updated with changes from the MLS® |
Listing information is provided by Participants of the Northeast Florida Multiple Listing Service(dba realMLS). IDX information is provided exclusively for personal, non-commercial use, and may not be used for any purpose other than to identify prospective properties consumers may be interested in purchasing. Information is deemed reliable but not guaranteed. Copyright 2026, Northeast Florida Multiple Listing Service(dba realMLS).
Last checked: 2026-03-15 10:14 AM UTC

Did you know? You can invite friends and family to your search. They can join your search, rate and discuss listings with you.