1806 ROYAL FERN LaneFleming Island, FL 32003
Due to the health concerns created by Coronavirus we are offering personal 1-1 online video walkthough tours where possible.




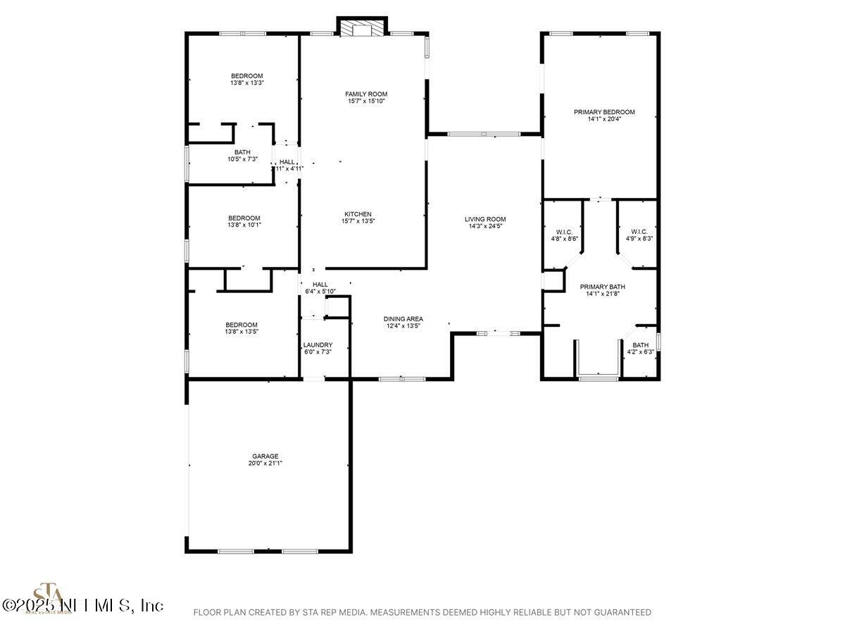
Experience Florida living in this fully renovated 4-bedroom, 2-bath brick home in the exclusive Pace Island gated community. At 2,424 sq ft and priced just over $600K, it offers water views, abundant natural light, and a serene pond behind a spacious covered porch. The split floor plan includes a luxurious owner's suite with water views, a spa-style bath with soaking tub, tiled shower, and dual walk-ins. The modern kitchen boasts quartz countertops, stainless steel appliances, and flows into a family room with a cozy fireplace. Tile flooring, stylish lighting, and a tankless water heater add turnkey appeal. Community perks include 2 pools (one Olympic size), tennis and basketball courts, clubhouse, playground, dock on Doctor's Lake, trails, and nearby wildlife refuge. Close to Jacksonville and Orange Park, this dream home won't last—schedule your private tour today!
| 2 weeks ago | Price changed to $604,999 | |
| 2 weeks ago | Listing updated with changes from the MLS® | |
| 2 months ago | Listing first seen on site |
Listing information is provided by Participants of the Northeast Florida Multiple Listing Service(dba realMLS). IDX information is provided exclusively for personal, non-commercial use, and may not be used for any purpose other than to identify prospective properties consumers may be interested in purchasing. Information is deemed reliable but not guaranteed. Copyright 2025, Northeast Florida Multiple Listing Service(dba realMLS).
Last checked: 2025-10-26 03:45 AM UTC

Did you know? You can invite friends and family to your search. They can join your search, rate and discuss listings with you.